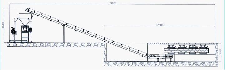
生产线由自动配料系统→皮带秤连续计量→螺旋混料和输送→成品输送设备→自动包装组成
该形式的生产线将系统的配料部分和混料部分也是整体安装在地下,占地面积小,有效节约空间,地面投料方便快捷,操作安全,减少工人节约成本;而且产量大,投资小,电脑控制方便管理,全自动化生产程度;整条线是国内唯一连续型生产线。